新築一戸建て 所沢市上新井 全8棟 C号棟

4,590万円

埼玉県所沢市上新井2丁目22−2

西武池袋線「西所沢」駅徒歩10分

西武池袋線「小手指」駅徒歩25分

西武狭山線「下山口」駅徒歩25分

価格
4,590万円
間取り
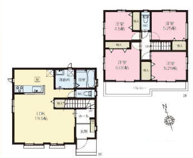
3LDK+S(納戸)
土地面積
120.48㎡
所在地
埼玉県所沢市上新井2丁目22−2
交通

西武池袋線西所沢」駅 徒歩10分

西武池袋線小手指」駅 徒歩25分

西武狭山線下山口」駅 徒歩25分

建物面積
94.60㎡
築年月
2025年11月(予定)

物件の特徴

  • バストイレ別

  • TVモニタ付きインターホン

  • カウンターキッチン

セールスポイント

「新築一戸建て 所沢市上新井 全8棟」のここがイチオシ。所沢市立上新井小学校が通学範囲内、学校まで徒歩13分。バリアフリーでご両親との暮らしにもおすすめです。生活環境が整った所沢市なら、きっと充実した生活が送れるでしょう。不動産購入をお考えであれば、お気軽にお問い合わせください。

ポイント

2駅利用可 駐車2台可 収納豊富 バス トイレ別 バルコニー

担当者のコメント

株式会社アイエー住宅販売  

「新築一戸建て 所沢市上新井 全8棟」:所沢市エリアの新居にピッタリ。通学区域の小学校は所沢市立上新井小学校徒歩13分。駅まで徒歩10分圏内に立地する物件です。夢のマイホームを所沢市の西武池袋線西所沢付近で探しましょう。きっと素敵な一戸建てが見つかりますので、まずは当社までお問い合わせ下さい。

基本情報

販売戸数
8戸
総戸数
8戸
間取り / 詳細
3LDK+S(納戸)
LDK 18.3帖 1室/洋室 6.0帖 1室/洋室 5.5帖 1室/洋室 4.5帖 1室/S 4.5帖 1室
向き
建物面積(坪数)
94.60㎡(28.61坪)
土地面積(坪数)
120.48㎡(36.44坪)
建ぺい率 /
容積率
60%/100%
築年月
2025年11月(予定)
駐車場 /
月額料金
有 0円
土地権利
所有権
土地
(敷金 / 保証金)
- / -
建物構造
木造 / 2階建
傾斜地部分面積
-
路地状敷地
-
私道負担面積
-
セットバック
高圧線下面積
-
施工会社
-
用途地域
第一種低層住居専用
地目 / 地勢
宅地 / -
接道状況
一方(南 公道 4.0m)
国土法届出要否
不要
都市計画
市街化区域
総区画数 /
販売区画数
8区画/8区画
現況
未完成
その他
法令上の制限
-
取引態様
仲介
引渡し
相談
取引条件の
有効期限
2025年11月27日

設備条件

設備条件
  • バリアフリー / 建設住宅性能評価書付 / 仲介手数料無料 / フローリング / バルコニー / 都市ガス / 公営水道 / 公共下水 / 電気有 / 駐車2台可 / システムキッチン / カウンターキッチン / バス・トイレ別 / 追焚機能浴室 / 温水洗浄便座 / 洗髪洗面化粧台 / 床下収納 / 収納豊富 / TVモニタ付インターホン / 複層ガラス
設備(その他)
    -

その他

物件番号
97512598
管理コード
-
建築確認番号
第HPA-25-08907-1号
情報更新日
2025年11月13日
次回更新予定日
2025年11月27日

新築一戸建て 所沢市上新井 全8棟の他の物件

  1. A号棟

    2SLDK (82.80㎡)

    3,990万円(159.35万円/坪)

  2. B号棟

    4LDK (95.63㎡)

    4,650万円(160.79万円/坪)

  3. D号棟

    4LDK (95.22㎡)

    4,690万円(162.85万円/坪)

  4. E棟

    4LDK (96.67㎡)

    4,890万円(167.24万円/坪)

  5. F号棟

    4LDK (97.50㎡)

    4,450万円(150.9万円/坪)

  6. G号棟

    4LDK (89.01㎡)

    4,290万円(159.36万円/坪)

  7. G号棟

    4LDK (89.01㎡)

    4,290万円(159.36万円/坪)

周辺施設

  • ノジマ 所沢本店の画像

    家電製品

    ノジマ 所沢本店

    542m(7分)

  • マミーマート 所沢山口店の画像

    スーパー

    マミーマート 所沢山口店

    643m(9分)

  • 西所沢保育園の画像

    保育園

    西所沢保育園

    933m(12分)

  • 所沢市立上新井小学校の画像

    小学校

    所沢市立上新井小学校

    980m(13分)

  • セブンイレブン 所沢荒幡店の画像

    コンビニエンスストア

    セブンイレブン 所沢荒幡店

    1812m(23分)

  • 所沢市立小手指中学校の画像

    中学校

    所沢市立小手指中学校

    1928m(25分)

支払いシミュレーション

月々の支払額
9.6
購入希望物件価格
万円
頭金
万円
金利
%
返済額(ボーナス1回分)
万円
返済期間

※ボーナスは自動で年2回分で計算されます。

近隣の物件

  1. 新築一戸建て 所沢市下安松 全2棟

    所沢市大字下安松

    4LDK (97.49㎡)

    3,799万円

  2. 新築一戸建て 所沢市東所沢和田 全11棟

    所沢市東所沢和田3丁目

    4LDK (100.19㎡)

    4,780万円

  3. 中古戸建 所沢市中新井4丁目

    所沢市中新井4丁目

    2LDK (136.63㎡)

    4,480万円

  4. 新築一戸建て 所沢市緑町 全2棟

    所沢市緑町4丁目

    4LDK (106.81㎡)

    5,599万円

新築一戸建て 所沢市上新井 全8棟

新築一戸建て 所沢市上新井 全8棟

4,590万円

-

3LDK+S(納戸)(94.60㎡)

お気軽にお問い合わせください

無料お問い合わせ

株式会社アイエー不動産販売

049-265-3631

9:00~18:00

(休:水曜日)