53件
-
1,380万円
81.76㎡ (4LDK) /築42年
- ペット飼育可
- ペット相談
- エレベーター
- 都市ガス
- トランクルーム
- 公共下水
ペット可
こだわりポイント満載の中古マンション 狭山市北入曽755-1。通学区域の小学校は狭山市立御狩場小学校徒歩3分。4LDKの物件は室内も広々としており、開放感があります。住まい探しで大切なことは、その住まいがどれだけあなたの生活スタイルに適しているかです。こだわりやご要望などあれば、当社にお任せ下さい。
-
- リノベーション済
- バス・トイレ別
- 都市ガス
- システムキッチン
- ガスコンロ
新生活を失敗せず、スタートさせたいならこちらの「狭山市新狭山2-14-1 チュリス新狭山 2階」はいかがでしょうか。平成29年フルリノベーション施工!大変綺麗にお使いです!当社は確かな不動産情報をご提供しております。こだわりやご要望などがあれば、メール又はお電話にて当社にご連絡下さい。経験豊富なスタッフがしっかりとサポート致します。
-
NEW
2,650万円
79.07㎡ (3LDK) /予定
- 都市ガス
- バリアフリー
- システムキッチン
- カウンターキッチン
- 食器洗い乾燥機
- 浴室乾燥機
新築
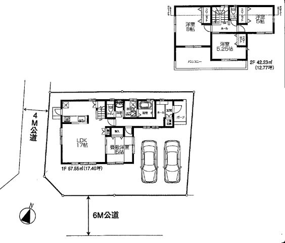
「新築一戸建 狭山市水野」:狭山市エリアの新居にピッタリ。狭山市立山王中学校が徒歩33分で通学にも便利です。階段をリビングに設けた、オシャレな室内が魅力となっています。多種多様な不動産情報を取り扱う当社なら、きっとお客様の住まい探しに役立てることでしょう。お引っ越しをお考えの方は是非お問い合わせ下さい。
-
NEW
3,900万円
97.01㎡ (4LDK) /予定
- 駐車2台可
- 都市ガス
- 陽当り良好
- バリアフリー
- システムキッチン
- カウンターキッチン
新築
通学区域の小学校は狭山市立新狭山小学校徒歩17分。浴室は冷めた湯を再び沸かせる追焚機能が付いています。駅から徒歩9分圏内に立地しています。西武新宿線新狭山近くに住まいを求めれば、移動にかかる時間を短縮できるでしょう。暮らしの効率化を図るのであれば、住まい探しはアイエー不動産販売にお任せください。
-
NEW
3,800万円
96.88㎡ (3LDK) /予定
- 駐車2台可
- 都市ガス
- 陽当り良好
- バリアフリー
- ウォークインクロゼット
- システムキッチン
新築
ぜひ一度見ていただきたい、「新築一戸建 狭山市東三ツ木・全3棟」です。ニーズの高い設備である追焚機能が付いている浴室になります。駅まで徒歩9分の物件です。今回紹介するのは、建物面積が96.88平米。狭山市での不動産探しはアイエー不動産販売にお任せください。当社でなら、きっと素敵な不動産が見つかることでしょう。
-
NEW
3,630万円
96.46㎡ (3LDK) /予定
- 駐車2台可
- 都市ガス
- バリアフリー
- ウォークインクロゼット
- システムキッチン
- カウンターキッチン
新築
こだわりで選びたい方におすすめ。狭山市エリアで住まいをお探しなら「新築一戸建 狭山市東三ツ木・全3棟」。通学区域内の小学校は狭山市立新狭山小学校で徒歩17分です。新築の戸建て物件です。地域に密着して不動産情報をご紹介する当社なら、きっとお客様のお住まい探しに役立つことでしょう。まずはご希望条件をスタッフまでお聞かせ下さい。
-
- リノベーション済
- リフォーム済
- バス・トイレ別
- 都市ガス
- カウンターキッチン
- 公共下水
こだわりポイント満載の狭山富士見1-14-2。家から144mの場所に狭山郵便局があります。新生活に適したフローリングを張り替えたキレイな物件です。狭山市にある西武新宿線狭山市周辺で不動産情報をお求めの方は、当社にお任せ下さい。当社は、お客様が快適な生活が送れるよう、しっかりとサポート致します。
-
1,400万円
417.00㎡ (-)
- 都市ガス
- 陽当り良好
- 公共下水
土地購入をお考えの方にイチオシの売地がこちらです。こちらの土地面積は417㎡で一押しです。接道10メートル以上あると非常時にも役立ちます。快適な住環境の地区が多く、ニーズの高い狭山市エリアの不動産探しなら当社にお任せください。地元のことを知り尽くしているので、お客様まで適切にアドバイスいたします。
-
- 駐車2台可
- プロパンガス
- システムキッチン
- TVモニタ付インターホン
- 24時間換気システム
- トイレ2ヶ所
新築
こだわりポイント満載の新築一戸建て 狭山市柏原。95.22㎡の建物面積でスペースの面でも問題なく快適に過ごせますよ。毎日の生活をより良いものにする省エネ給湯機付。機能的で使いやすいシステムキッチン付きなので、お料理を楽しめます。当社では、狭山市エリアと西武新宿線狭山市付近の情報を取り扱っております。住まい探しの際には是非お問い合わせ下さい。
-
- フローリング
- システムキッチン
ぜひ一度見ていただきたい、「マンション 狭山市新狭山二丁目 」です。バルコニーの広さが7.84㎡の物件です。住まい探しで大切なことは、信頼できる不動産会社を選ぶことです。弊社では、お客様としっかり向き合い、住まい探しをサポート致しますので、安心してお任せください。
-
3,480万円
104.49㎡ (2LDK+S(納戸)) /予定
- 都市ガス
- システムキッチン
- 浴室乾燥機
- バス・トイレ別
- バルコニー
- フローリング
新築
「新築一戸建て 狭山市狭山台全2棟」:狭山市エリアの新居にピッタリ。徒歩6分の場所に狭山市立狭山台小学校があります。安心の前面道路6m以上の条件を備えております。浄水器は蛇口をひねるだけで、とても美味しいお水が飲めます。一戸建て購入時の不安を、豊富なスタッフが解消いたします。狭山市の西武新宿線狭山市周辺でマイホームを求めるのであれば、お気軽にお問い合わせください。
-
3,480万円
104.49㎡ (3LDK+S(納戸)) /予定
- 駐車2台可
- 都市ガス
- システムキッチン
- 浴室乾燥機
- バス・トイレ別
- バルコニー
新築
西武新宿線狭山市駅周辺への引っ越しをお考えなら「新築一戸建て 狭山市狭山台全2棟」。歩いて196mの場所に、ビッグ・エー狭山狭山台店があります。建物面積104.49㎡もあるので有効活用しましょう。生活を充実させる利便性が高い新築の戸建て物件です。当社スタッフが住まい探しをサポート致しますので、西武新宿線狭山市周辺へお引っ越しをするなら、ぜひお問い合わせください。
-
- 都市ガス
- ウォークインクロゼット
- バス・トイレ別
- 電気有
- 独立洗面台
- コンロ2口以上
新築
歩いて443mのところに水富郵便局があります。斜面傾斜が少ない平坦な土地です。開放感溢れる室内が魅力の、3LDKの物件はこちらです。みなさまから好評である、独立した洗面所が付いている物件となっています。当社では数多くの不動産を取り扱っておりますので、お客様の希望する不動産を見つけ、よりよい生活を実現させます。ぜひご検討ください。
-
- 都市ガス
- ウォークインクロゼット
- バス・トイレ別
- 電気有
- 独立洗面台
- コンロ2口以上
新築
歩いて443mのところに水富郵便局があります。斜面傾斜が少ない平坦な土地です。開放感溢れる室内が魅力の、3LDKの物件はこちらです。みなさまから好評である、独立した洗面所が付いている物件となっています。当社では数多くの不動産を取り扱っておりますので、お客様の希望する不動産を見つけ、よりよい生活を実現させます。ぜひご検討ください。
-
- 都市ガス
- 陽当り良好
- 公共下水
「土地 狭山市水野 全4区画」:狭山市エリアの新居にピッタリ。本下水、都市ガスなので住まいに適した周辺環境が整っており、快適な生活が期待できるのではないでしょうか。売地をお探しの方には、こちらの売地はいかがでしょうか。専門知識も必要とする不動産探しは不安や疑問も多いかと思います。不動産に関する事は、地域に密着し信頼の厚い当社にぜひお任せください。ご連絡をお待ちしております。
-
- 都市ガス
- 陽当り良好
- 公共下水
「土地 狭山市水野 全4区画」:狭山市エリアの新居にピッタリ。徒歩16分の場所に狭山市立山王小学校があります。土地購入の際、売地のことなら当社にご相談ください。新しい住まいをお考えの方に、好条件の住宅用地はこちらです。不動産探しは、経験と知識豊富なスタッフの揃う当社にお任せください。親切丁寧なご対応をモットーとし、お客様のご要望にお応えできるよう努めております。お客様のお問い合わせをお待ちしております。
-
- 都市ガス
- 陽当り良好
- 公共下水
土地 狭山市水野 全4区画:西武新宿線入曽駅にも近くて便利。徒歩16分の場所に狭山市立山王小学校があります。本下水、都市ガスの物件です♪幅広い方にご好評の、知識と経験豊富な当社スタッフが、お客様の住まい探しを全力でサポートいたします。不動産探しに関する疑問・質問など何でもお気軽にお問い合わせください。
-
- オープンハウス
- 公共下水
「資材置き場用地 狭山市笹井」資材置場用地や駐車場用地に適した立地で、好条件の周辺環境が整っており、利便性も高い立地となっています。接道幅が15m以上あるので利便性が非常に高いです。狭山市エリアの不動産情報を、経験・知識が豊富なスタッフがご紹介いたします。お薦めの西武池袋線仏子周辺の情報もございますので、ぜひお気軽に当社までお問い合わせください。
-
- プロパンガス
- 電気有
- 陽当り良好
- 閑静な住宅地
- 公共下水
こだわりポイント満載の土地 狭山市上奥富。徒歩28分の距離に狭山市立中央中学校があるのも魅力。こちらの土地面積は323.6㎡でございます。ますますの発展が期待される西武新宿線新狭山周辺で快適な新生活を始めませんか。当社にはお薦めの不動産情報が多数ございます。ぜひお気軽にお問い合わせください。
-
- プロパンガス
- 陽当り良好
- 眺望良好
- 公共下水
動画
狭山市エリアでの住まいなら、住み心地も快適な「土地 狭山市柏原 全7区画」はいかがでしょうか。土地面積は331㎡となっております。幅15m以上の接道なので安心して建物を建てる事ができます。土地の購入をご検討されているなら、ニーズも高いこちらの売地はいかがでしょうか。お客様の希望条件をぜひお聞かせください。不動産情報や周辺の生活情報も併せてご案内し、快適な新生活になるよう全力でお客様の夢を叶えるお手伝いをいたします。
-
- プロパンガス
- 陽当り良好
- 眺望良好
- 公共下水
動画
土地購入をお考えの方におすすめなのがこちらの売地。施工業者の制約を受けないので、自分で1から間取りを考えられる建築条件無し。住まいの場所としておすすめな住宅用地となっています。広さの心配がいらない土地面積351㎡。住まい探しのサポートを致します。お客様に満足していただける自信がございますので、まずは住まいに関する希望の条件等をスタッフまでお声かけください。
-
- プロパンガス
- 陽当り良好
- 眺望良好
- 公共下水
動画
周囲の環境もきっと満足して頂ける住宅用地はこちらです。ぜひご覧ください。建築条件がないため、お目当ての建築会社やハウスメーカーで、思いのままのマイホームを建てることが可能です。土地面積は331㎡となっています。接道幅が15m以上あるので利便性が非常に高いです。信頼と実績の当社が、お客様の不動産購入への不安や疑問を解消いたします。ぜひ不動産探しは当社にお任せください。お客様のお問い合わせをお待ちしております。
-
- プロパンガス
- 公共下水
ぜひ一度見ていただきたい、「中古戸建 狭山市広瀬東」です。徒歩6分のところに狭山上広瀬郵便局があります。こちらは中古一戸建ての物件です。今すぐ引っ越したい方にお勧めなのが即引渡し物件です。当社スタッフが狭山市や西武新宿線狭山市付近の一戸建て探しをサポートいたします。お気軽に地域の情報などもお尋ねください。
「中古マンション 田園キャスル新狭山」:狭山市エリアの新居にピッタリ。歩いて492mのところに新狭山駅前郵便局があります。専有面積43.38㎡の物件はいかがですか。狭山市エリアにお引越しを検討するなら、西武新宿線新狭山近辺を狙いましょう。安心して過ごせるお住まいのご質問等は、otoiawase-sougou@aia-jyuhan.co.jpからご連絡下さい。