NEW

新築一戸建て 入間市新久

2,890万円

埼玉県入間市大字新久820-196

西武池袋線「仏子」駅徒歩23分

価格
2,890万円
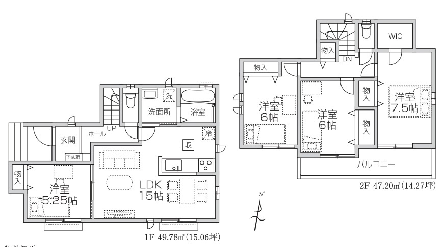
間取り
4LDK
土地面積
202.51㎡
所在地
埼玉県入間市大字新久820-196
交通

西武池袋線仏子」駅 徒歩23分

建物面積
101.85㎡
築年月
2026年3月(予定)

物件の特徴

  • TVモニタ付きインターホン

セールスポイント

通学区域内の小学校は入間市立東金子小学校で徒歩16分です。来訪者の顔が見えるTVインターホン付き。コチラの物件は、新築の戸建て物件で設備も充実しています。防災アイテムの収納にも便利な玄関収納付き。生活環境が整った入間市なら、きっと充実した生活が送れるでしょう。不動産購入をお考えであれば、お気軽にお問い合わせください。

ポイント

LDK18帖以上 土地60坪以上 床下収納 玄関収納 TVモニタ付インターホン

基本情報

販売戸数
-
総戸数
-
間取り / 詳細
4LDK
向き
-
建物面積(坪数)
101.85㎡(30.8坪)
土地面積(坪数)
202.51㎡(61.25坪)
建ぺい率 /
容積率
60%/100%
築年月
2026年3月(予定)
土地権利
所有権
土地
(敷金 / 保証金)
- / -
建物構造
木造 / 2階建
傾斜地部分面積
-
路地状敷地
-
私道負担面積
-
セットバック
-
高圧線下面積
-
施工会社
-
用途地域
第一種低層住居専用
地目 / 地勢
宅地 / -
接道状況
-(北 公道 4.0m)
国土法届出要否
不要
都市計画
-
総区画数 /
販売区画数
-/-
現況
未完成
その他
法令上の制限
-
取引態様
仲介
引渡し
2026年3月下旬
取引条件の
有効期限
2026年02月09日

設備条件

設備条件
  • 都市ガス / 公営水道 / 公共下水 / 電気有 / 駐車3台可 / 床下収納 / TVモニタ付インターホン
設備(その他)
    -

その他

物件番号
100907124
管理コード
-
建築確認番号
第HPA-25-14099-1号
情報更新日
2026年01月26日
次回更新予定日
2026年02月09日
取扱会社
  • 株式会社アイエー不動産販売
  • 埼玉県川越市並木新町8-11 
  • TEL:049-265-3631
  • 国土交通大臣 (3) 第8590号
  • (公社)全国宅地建物取引業保証協会会員
    (公社)首都圏公正取引協議会加盟

新築一戸建て 入間市新久の他の物件

  1. 4LDK (96.98㎡)

    2,790万円(95.12万円/坪)

周辺施設

  • 医療法人金子病院の画像

    総合病院

    医療法人金子病院

    758m(10分)

  • 入間市立東金子小学校の画像

    小学校

    入間市立東金子小学校

    1256m(16分)

  • 入間市立新久小学校の画像

    小学校

    入間市立新久小学校

    1375m(18分)

  • 入間市立金子第二保育所の画像

    保育園

    入間市立金子第二保育所

    1540m(20分)

支払いシミュレーション

月々の支払額
9.6
購入希望物件価格
万円
頭金
万円
金利
%
返済額(ボーナス1回分)
万円
返済期間

※ボーナスは自動で年2回分で計算されます。

近隣の物件

  1. 新築一戸建て 入間市東藤沢

    入間市東藤沢1丁目

    4LDK (105.58㎡)

    4,399万円

  2. 新築一戸建て 入間市豊岡

    入間市豊岡2丁目

    4LDK (107.20㎡)

    4,090万円

  3. 新築一戸建て 入間市高倉

    入間市高倉5丁目

    4LDK (93.15㎡)

    3,090万円

  4. 新築一戸建て 入間市黒須

    入間市黒須2丁目

    4LDK (92.74㎡)

    2,990万円

新築一戸建て 入間市新久

新築一戸建て 入間市新久

2,890万円

-

4LDK(101.85㎡)

お気軽にお問い合わせください

LINEからお問い合わせ 無料お問い合わせ

株式会社アイエー不動産販売

049-265-3631

9:00~18:00

(休:水曜日)