西区中野林第2 新築一戸建て

-

埼玉県さいたま市西区大字中野林

川越線「指扇」駅徒歩46分

川越線「西大宮」駅徒歩60分

埼京線「与野本町」駅徒歩63分

価格
-
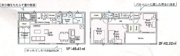
間取り/建物面積
-/-
所在地
埼玉県さいたま市西区大字中野林
築年
2025年3月(予定)
交通

川越線指扇」駅 徒歩46分

川越線西大宮」駅 徒歩60分

埼京線与野本町」駅 徒歩63分

西区中野林第2 新築一戸建ての基本情報

物件名
西区中野林第2 新築一戸建て
価格
-
建物面積
-
土地面積
-(-)
築年月
2025年3月(予定)
総戸数
-
所在地
埼玉県さいたま市西区大字中野林
交通

川越線指扇」駅 徒歩46分

川越線西大宮」駅 徒歩60分

埼京線与野本町」駅 徒歩63分

西区中野林第2 新築一戸建ての詳細情報

設備条件
  • 駐車2台可
設備(その他)
    -
土地権利
所有権
国土法届出
不要
用途地域
無指定
取引態様
仲介
引渡し
相談

周辺施設

  • 二ツ宮内科クリニックの画像

    クリニック

    二ツ宮内科クリニック

    431m(6分)

  • 植水中学校の画像

    中学校

    植水中学校

    512m(7分)

  • セブンイレブンの画像

    コンビニエンスストア

    セブンイレブン

    548m(7分)

  • マルエツ佐知川店の画像

    スーパー

    マルエツ佐知川店

    1638m(21分)

  • 植水小学校の画像

    小学校

    植水小学校

    1724m(22分)

よく見られている物件

  1. 川越市仙波町3丁目

    3LDK (109.65㎡)

    4,898万円

  2. 所沢市小手指南4丁目

    3K (38.09㎡)

    450万円

  3. 狭山市広瀬台1丁目

    6DK (98.32㎡)

    720万円

  4. 所沢市和ケ原1丁目

    2LDK (46.97㎡)

    930万円

西区中野林第2 新築一戸建て

お気軽にお問い合わせください

LINEからお問い合わせ 無料お問い合わせ

株式会社アイエー不動産販売

049-265-3631

9:00~18:00

(休:水曜日)