204件
-
4,280万円
100.19㎡ (4LDK) /新築
- 都市ガス
- 建設住宅性能評価書付
- 収納豊富
- ウォークインクロゼット
- システムキッチン
- カウンターキッチン
新築
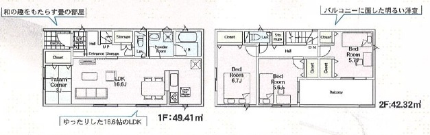
新築一戸建て 所沢市下安松 全2棟:西武池袋線秋津駅にも近くて便利。
所沢市立安松小学校が通学範囲内、学校まで徒歩9分。お子様の登下校も安心な距離感です。
また、建物面積が100.19㎡と十分な広さでゆったりと生活できるのではないのでしょうか。
多くの方に好評の物件で、令和8年2月築となっています。
西武池袋線秋津周辺にある不動産の詳細が気になる方は、アイエー不動産販売までお気軽にご連絡くださいませ。
スタッフ一同お問い合わせをお待ちしております。 -
3,980万円
101.43㎡ (4LDK) /新築
- 都市ガス
- 建設住宅性能評価書付
- 収納豊富
- ウォークインクロゼット
- システムキッチン
- カウンターキッチン
新築
所沢市エリアでの住まいなら、住み心地も快適な「新築一戸建て 所沢市下安松 全2棟」はいかがでしょうか。
所沢市立安松小学校が通学範囲内、学校まで徒歩9分。
お子様の登下校も安心な距離感です。
快適なお住まいを見つけて、新しい生活をスタートさせましょう。
これから先のあなたの生活を豊かにする不動産に出会えます。ぜひご検討ください。 -
3,790万円
97.08㎡ (4LK+S(納戸)) /新築
- 駐車2台可
- 都市ガス
- 収納豊富
- システムキッチン
- カウンターキッチン
- 浴室1坪以上
新築
こだわりで選びたい方におすすめ。所沢市エリアで住まいをお探しなら「新築一戸建て 所沢市若狭 全3棟」。家から485mの場所に所沢若狭郵便局があります。建物面積が97.08㎡と十分な広さでゆったりと生活できるのではないのでしょうか。地盤が弱いと大惨事になりかねませんので地盤調査はとても大切です。不動産について何かお困りのことなどがございましたら、西武池袋線狭山ヶ丘周辺の地域に強い当社スタッフまでお問い合わせください。
-
- 収納豊富
- ウォークインクロゼット
- カウンターキッチン
- 食器洗い乾燥機
- 浴室1坪以上
- 電気有
新築
土間収納がある収納充実な物件です。
全部屋約5帖以上、LDK約21.6帖の広々とした間取♪
バルコニーも広く、お洗濯物がたくさん干せます。
所沢市にあるこちらの一戸建てに関して、何かご不明な点などがございましたら、ぜひお問い合わせ下さい。
内覧予約なども承っております。 -
- 駐車2台可
- プロパンガス
- ルーフバルコニー
- 電気有
- 床下収納
- 公共下水
新築
クローゼット付きの物件です。生活の中では、欠かせない車を2台も駐車可能で便利です。利便性の高い設備も充実した、高ニーズな2025年12月築の物件です。広さが20帖以上もあるリビングで家族揃ってくつろぎませんか。あなたやご家族のライフスタイルに合わせて、お住まいを探しませんか。皆様が快適に暮らせる不動産を当社ではご用意しております。ぜひご検討ください。
-
- 駐車2台可
- プロパンガス
- ウォークインクロゼット
- 電気有
- 床下収納
- 公共下水
新築
飯能市立双柳小学校まで徒歩9分。子どもを安心して学校に通わせたいファミリーにおすすめです。車が2台も駐車でき、来客が来ても置けるので、便利です。快適な生活を送れる3LDKの物件情報あります。あなたが求める暮らしを実現させましょう。こだわりぬいて住まいを選べば、快適な生活が待っています。ぜひご検討くださいませ。
-
- プロパンガス
- ウォークインクロゼット
- 電気有
- 床下収納
- 公共下水
新築
買い物に便利なショッピングセンター「フーコットショッピングセンター」まで、歩いて5分です。新築の戸建て物件です。新築ならではの「新しさ」がとても魅力です。建物面積99.77㎡以上あるので広々と使えます。当社スタッフが住まい探しをサポートいたします。八高線東飯能周辺で不動産を購入するのであれば、ぜひお問い合わせください。
-
- プロパンガス
- システムキッチン
- フローリング
- 電気有
- 温水洗浄便座
- 複層ガラス
新築
小学校が十分通学できる範囲にあります。狭山市立柏原小学校が徒歩13分です。綺麗で清潔感のある室内が新築戸建ての特徴です。備蓄品を入れることができる床下収納があります。住まい選びで困ったことはありませんか。お悩みがあれば、私どもにお問い合わせください。ご一緒に快適な暮らしを始めましょう。
-
- プロパンガス
- システムキッチン
- フローリング
- 電気有
- 温水洗浄便座
- 複層ガラス
新築
通学区域内の小学校は狭山市立柏原小学校で徒歩13分です。建物面積96.05平米なので、使い勝手がいいです。断熱効果と結露防止効果のある複層ガラスなので年中快適な室内です。新生活のスタートに一戸建てをお求めなら、当社までお気軽にご連絡ください。狭山市の西武新宿線狭山市近くでの住まい探しを、全力でサポートさせていただきます。
-
- 都市ガス
- ウォークインクロゼット
- システムキッチン
- 浴室乾燥機
- 温水洗浄便座
- 公共下水
新築
通学区域の小学校は狭山市立水富小学校徒歩13分。一生に一度のマイホーム探しは、ぜひ新築戸建てで。あなたが求める暮らしを実現させましょう。ぜひご検討くださいませ。
-
- 都市ガス
- システムキッチン
- 浴室乾燥機
- 温水洗浄便座
- 公共下水
新築
狭山市立水富小学校が通学範囲内、学校まで徒歩13分。ゆったりとした駐車スペースは、車を2台並列で停めることができます。地域に特化したアイエー不動産販売が取り扱う不動産情報をご紹介致しますので、詳細情報が気になる方は、お気軽にお問い合わせくださいませ。
-
- 都市ガス
- システムキッチン
- 浴室乾燥機
- 温水洗浄便座
- 公共下水
新築
駐車に不安のある方も安心の、並列2台付きの住居となっています。洗髪可能なシャワー付き洗面台があるととても快適に生活できます。99.98㎡の建物面積でスペースの面でも問題なく快適に過ごせますよ。お客様の住まい探しをサポート致します。狭山市で不動産の購入を検討しているのであれば、お気軽にお問い合わせください。
-
- 駐車2台可
- 都市ガス
- 床暖房
- 収納豊富
- ウォークインクロゼット
- カウンターキッチン
新築
徒歩8分の場所に入間市立藤沢北小学校があります。新築の戸建てで気分爽快な生活を送りましょう。ウォークインクロゼットは洋服がみやすくとても便利な収納です。建物面積109.09平米の物件です。アイエー不動産販売のスタッフが西武池袋線武蔵藤沢周辺での住まい探しをサポート致します。まずはお気軽にご連絡ください。
-
- 都市ガス
- 食器洗い乾燥機
- TVモニタ付インターホン
- 24時間換気システム
- 公共下水
新築
新築一戸建て 入間市豊岡:西武池袋線入間市駅にも近くて便利。入間市立高倉小学校まで徒歩11分。子どもを安心して学校に通わせたいファミリーにおすすめです。物件に備え付けの食器洗乾燥機をご利用いただけます。不動産の購入は、人生の中でも大きなお買い物です。当社スタッフが不動産購入をしっかりサポート致しますので、どうぞ安心してお任せ下さい。
-
- 都市ガス
- 電気有
- 公共下水
新築
「新築一戸建て 川越市稲荷町」のここがイチオシ。歩いて徒歩3分の場所にコモディイイダ上福岡店があるのもポイント。こだわり条件の一つ東南側道路に面している物件になってます。一戸建てをお探しなら、川越市の東武東上線上福岡周辺に強い当社までご連絡ください。信頼できるスタッフが住まい探しをサポート致します。
-
3,049万円
93.36㎡ (3LDK) /築31年
- 都市ガス
- リフォーム済
- システムキッチン
- 温水洗浄便座
- 公共下水
駅まで徒歩10分の立地♪
また、2駅利用できる場所にあるので利便性が高いです。
お客様のご希望条件に合った不動産をアイエー不動産販売のスタッフがお探し致します。
ぜひご連絡ください。 -
2,999万円
134.42㎡ (5LDK) /築36年
- 都市ガス
- リフォーム済
- システムキッチン
- 浴室1坪以上
- ルーフバルコニー
- 室内洗濯機置場
5LDKの広々とした間取です。2025年9月にリフォーム完了予定で、水廻り(キッチン、浴室、トイレ、洗面台)新規交換です。お住まいに関することはお任せ下さい。お客様の疑問やご要望にお応えします。ご希望の不動産を見つけ、これから先の実りある生活を実現していきましょう。
-
- 都市ガス
- 陽当り良好
- リフォーム済
- 収納豊富
- 室内洗濯機置場
- バルコニー
フローリング張りの物件です。15帖以上のLDKとなっており、家族団らんの場としても適した広さです。
小学校まで徒歩10分なので登下校も安心な距離です♪
内装リフォーム済みなので、新しくなった住まいで生活を始めることができます。
交通アクセスの充実した西武池袋線狭山ヶ丘周辺なら、きっと充実した暮らしが送れるでしょう。住まい探しはアイエー不動産販売にお任せください。 -
- バス・トイレ別
- 都市ガス
ぜひ一度見ていただきたい、「-三丁目不動産-入間駅前プラザ6号棟-」です。傾斜が少ないのでお年よりの方にもやさしい平坦地です。7平米のバルコニーが付いた物件です。解放感溢れる3LDKの物件はこちらです。西武池袋線入間市近辺で快適な暮らしをお求めなら、地域に詳しい当社にご依頼下さい。経験豊富な当社スタッフがしっかりとサポートいたします。
-
3,499万円
66.00㎡ (3LDK) /築27年
- 陽当り良好
- リフォーム済
- ウォークインクロゼット
- バス・トイレ別
- 都市ガス
- TVモニタ付インターホン
西武池袋線小手指駅周辺への引っ越しをお考えなら「ライオンズマンション小手指第2」。
南向きの物件で日当たり良好です。
またオートロックやモニター付きインターホンのため防犯面でも安心です。
所沢市で新しい住環境をお探しなら、西武池袋線小手指近くでお求め下さい。
アイエー不動産販売にご来店をお待ちしております。 -
- 都市ガス
- 収納豊富
- カウンターキッチン
- 食器洗い乾燥機
- 電気有
- 温水洗浄便座
新築
入間市立藤沢北小学校が通学範囲内、学校まで徒歩18分。駅から徒歩8分の物件です。急な来客にも対応できる広々とした駐車スペースをご用意しています。こちらは3台まで駐車可。西武池袋線武蔵藤沢近辺で戸建て情報をお探しの方は、入間市の情報数が豊富なアイエー不動産販売にお任せ下さい。ご利用をお待ちしております。
-
2,270万円
96.78㎡ (4LDK) /新築
- 駐車2台可
- プロパンガス
- システムキッチン
- 浴室乾燥機
- 電気有
- TVモニタ付インターホン
新築
徒歩15分の場所に飯能市立双柳小学校があります。女性の方を中心にニーズのある、洗面所が独立した物件です。日常生活で利用頻度の高い水回りだからこそ、使い勝手のいいシステムキッチンを選んでみませんか。お住まいへのこだわりは十人十色です。当社ではどのお客様でも満足していただけるよう、数多くの不動産情報を取り扱っております。ぜひご検討ください。
-
2,270万円
97.59㎡ (4LDK) /新築
- プロパンガス
- システムキッチン
- 浴室乾燥機
- 電気有
- TVモニタ付インターホン
- 独立洗面台
新築
小学校が十分通学できる範囲にあります。飯能市立双柳小学校が徒歩15分です。トイレが2ヶ所にあるので複数人でも快適に暮らせます。初めてのマイホームに新築戸建てはいかがでしょうか。不動産情報はもちろん、地域情報も詳しくお伝え致します。飯能市で生活するにあたって気になる点があれば、ぜひご質問くださいませ。
-
2,070万円
95.58㎡ (4LDK) /新築
- プロパンガス
- ウォークインクロゼット
- システムキッチン
- 浴室乾燥機
- 電気有
- TVモニタ付インターホン
新築
2駅利用できる場所にあるので利便性が高いです。浴室乾燥機のあるお風呂場は洗濯物を干すときにも便利です。これからの新生活での暮らしを一新するために、新築戸建てはいかがでしょうか。新生活をはじめる方にお勧めな4LDKの物件があります。地域情報に詳しいアイエー不動産販売にご連絡頂ければ、不動産情報と併せて飯能市エリアの地域情報もお伝え致します。
-
2,080万円
201.10㎡ (-)
- プロパンガス
- 個別浄化槽
こだわりポイント満載の土地 川越市鴨田 全9区画。角地なので、風通しもよく解放感があり、快適に過ごすことができます。不動産購入に関するどのようなご質問でも、ぜひお気軽に当社へお問い合わせください。お客様の不安や疑問を一緒に解決できるよう、専門スタッフが親切丁寧にご対応いたします。
-
1,880万円
201.10㎡ (-)
- プロパンガス
- 個別浄化槽
こだわりで選びたい方におすすめ。川越市エリアで住まいをお探しなら「土地 川越市鴨田 全9区画」。日当たりを重視している方に適した南側道路になります。周辺環境の良い売地ですので、土地購入をご検討の方におすすめです。当社の経験豊富なスタッフが、お客様の安心の住まい選びをサポートいたします。さまざまな住まい探しのご質問にお答えいたしますので、ぜひお気軽にお問い合わせください。
-
1,880万円
201.11㎡ (-)
- プロパンガス
- 個別浄化槽
こだわりポイント満載の土地 川越市鴨田 全9区画。徒歩25分の場所に芳野小学校があります。好きなデザインで好きな住まいが建てられる建築条件なし。道路が南側に面しているので、とてもニーズが高いです。知識と経験豊富な当社スタッフが、あなたのマイホームの夢を叶えるお手伝いをいたします。ぜひあなたの住まいに求める条件をお聞かせください。ご連絡をお待ちしております。
-
1,880万円
201.10㎡ (-)
- プロパンガス
- 個別浄化槽
建築条件無しなので好きな建築業者に依頼することができます。土地面積は201.1㎡(実測)となっており駐車スペースも十分確保できます♪川越市エリアでの不動産探しに関するお悩みがありましたら、ぜひアイエー不動産販売にお任せください。不動産のプロがお客様と一緒に問題に取り組み、解決いたします。
こだわりで選びたい方におすすめ。所沢市エリアで住まいをお探しなら「新築一戸建て 所沢市牛沼」。徒歩13分の場所に所沢市立牛沼小学校があります
。当社では所沢市にある不動産情報をご用意しておりますので、住まい探しをする方はお気軽にお問い合わせください。スタッフ一同お待ちしております。